With Repurposed CAD Interiors, accuracy and easy integration are key. They provide a simple way for clients to add detailed interior layouts to their maps. This article explores the advantages and drawbacks of choosing Repurposed CAD Interiors.
What are Repurposed CAD Interiors?
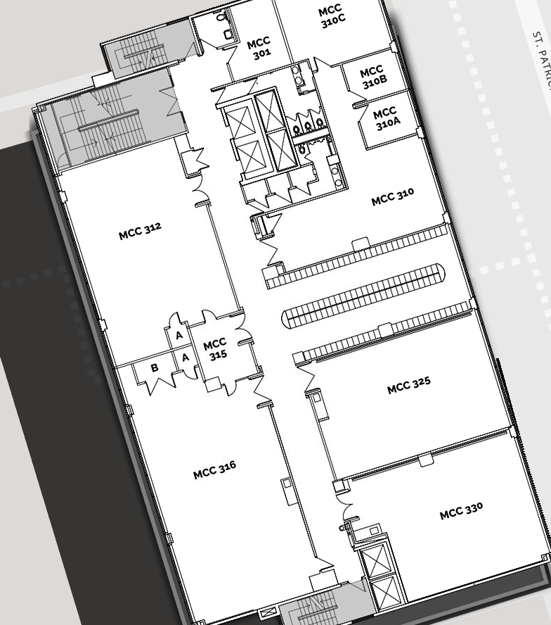
Repurposed CAD Interiors start with the CAD files you provide, typically in .dwg format. We convert these files into images that are then seamlessly integrated into our content management system (CMS), aligning with the existing building footprints on your map. This process ensures that the final product on your map is a true-to-source representation of your original CAD files.
How Repurposed CAD Interiors Are Created
The creation of Repurposed CAD Interiors involves a straightforward conversion of your CAD files into images that can be easily handled by our CMS. We take care to rotate these images to match the orientation of the building on the map, enhancing readability and functionality. Labels that are unclear are adjusted—either rotated or scaled up—to ensure that every detail is legible and useful.
Benefits of Repurposed CAD Interiors
Choosing Repurposed CAD Interiors offers several advantages:
- Control: You have complete control over the content that appears on your map.
- Simplicity: The images will display exactly as you send them, minimizing the need for back-and-forth editing.
- Efficiency: The streamlined process allows for quick integration without unnecessary complications.
Limitations of Repurposed CAD Interiors
Despite the benefits, there are some limitations to consider:
- No Custom Edits: The CAD drawings are used as-is, so no custom room edits or removal of unwanted lines are possible.
- Fixed Style: The interiors are presented in black and white, reflecting the original CAD file without additional stylistic enhancements.
- Icons: Icons are not Included in the base package but can be added.
Repurposed CAD vs. 2D and 3D Interiors
For those seeking more customized options, we also offer custom colors and styles on 2D and 3D interior styles. Unlike Repurposed CAD Interiors, these can include custom styles, colors, and a more visually appealing aesthetic. These alternatives might be suitable if you are looking for interiors that are not only functional but also aesthetically in line with your organization’s branding.
Custom Colors and icons are not included with 2D or 3D base packages.
They are not available with Repurposed CAD Interiors.
Repurposed CAD Interiors are ideal for clients who value straightforward, accurate map integration. If this solution meets your needs, we encourage you to proceed with it. However, if you require more tailored options with additional styling, please explore our 2D and 3D interior styles by clicking HERE.
Interested in a quote for Repurposed CAD Interiors? Please reach out to your Client Success Manager or support@concept3d.com.