Adding interiors to maps can enrich a user's experience by providing detailed layouts for better planning, improving indoor navigation, and highlighting essential facilities.
Styles:
We offer three different styles of interior floorplans for our clients to choose from when adding interiors to their maps. The style types we offer are 2D, 3D, and Repurposed CAD. See below for examples and definitions of the styles
2D Interiors
This is our most commonly used style of interior. It consists of calling out the rooms in a tan color, the halls in a lighter tan color, the stairs and elevators in a gray color, and the bathrooms in a light blue color. This also includes Icons for all bathrooms (unisex/woman/men), stairs, and elevators. This also includes labels for each room based on provided Interior CAD files or PDFs from our clients.
3D Interiors
The 3D style includes everything from the 2D style but also includes 3D extended walls around the rooms. This helps visually show the separation between spaces while adding a bit of detail.
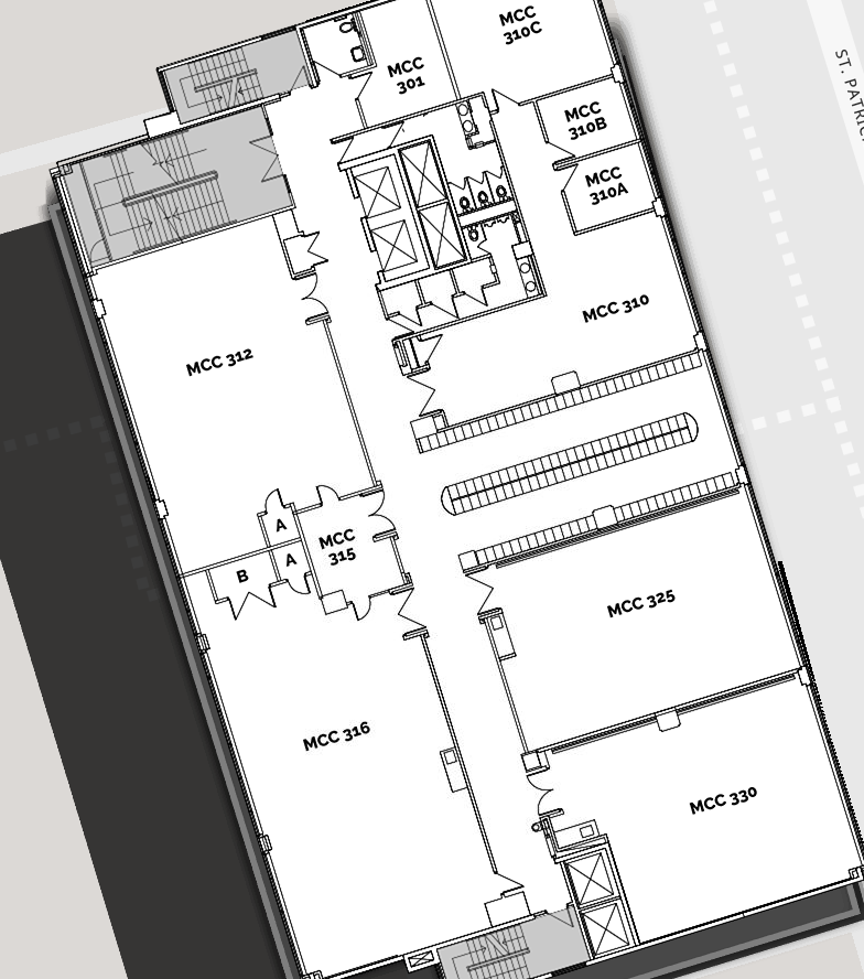
Repurposed CAD Interiors
These are created using the CAD files provided to us by our clients. They are entirely black and white and will have labels on them as they appear in the CAD files. We may rotate or resize the labels to make them more readable. We do not offer any updates or adjustments to Repurposed CAD Interiors. Icons can be added but are not included in the base package for Repurposed CAD Interiors.
Additional Customization
For those seeking more customized options, we also offer custom colors and styles on 2D and 3D interior styles. Unlike Repurposed CAD Interiors, these can include custom styles, colors, and a more visually appealing aesthetic. These alternatives might be suitable if you are looking for interiors that are not only functional but also aesthetically in line with your organization’s branding.
Custom Colors and icons can be added but are not included with 2D or 3D base packages.
Custom Colors are not available with Repurposed CAD Interiors.
Icons
These icons are editable and can be customized by the client to meet specific needs, ensuring that the maps are both informative and aligned with user expectations Our standard icon set for bathrooms, stairs, and elevators are included with 2D and 3D maps. Icons can be added but are not included in the base package for Repurposed CAD Interiors.
Current Clients:
If you have purchased 2D interiors for your map instance, follow the instructions below to share your interior information with your Client Success Manager and Production Team. Interior room labels will be Dynamic, instead of rendered!
- Fill out the spreadsheet here.
- Upload the floor plan files through the "Upload Data" button found in the top right corner of your map CMS. Organize the data into folders named after the buildings before uploading.
- Review the Interiors Standard Map here and note the details below as to how our production team will stylize the interiors and provide any feedback necessary.
Room numbers:
- Are there building codes that need to be included with interior room numbers? Usually, we leave them out as it can get cluttered.
- For basement floors, is it important to include 0’s i.e. 007 vs. 7?
- Concept3D usually leaves out labeling closets, and backend/maintenance rooms as the public often doesn’t need to way find to them. Backend/maintenance room examples: elevator mechanical, mechanical, electrical, janitor, boiler rooms, & vents.
Naming Interiors:
- Is it important to call out public rooms or just numbers? I.e. classroom, lab, gym, reception, & information desk. Note: rooms that are more back-end are left unnamed.
Style Guide:
- See interiors standard map for our style standard.
- Client can provide style guide:
- Font?
- Color changes?
- Any specialty icons?
NOTE: Concept3D strives to be more accessibility friendly with interiors by calling out whether a restroom is ADA and calling out ramps.
Interested in a quote for Interiors? Please reach out to your Client Success Manager or support@concept3d.com.